終了しました
趣味と暮らしを楽しむ、ミッドセンチュリーモダンの住まい|マンションリノベ見学会in名古屋市昭和区
2025年10月25日 10:00〜17:00
本イベントは終了しました
-
このイベントについて
-
実際にKULABOで家づくりをしたオーナー様のお住まいを見学できる「リノベーション見学会」を愛知県名古屋市昭和区で開催!
間取り・設計の工夫やデザインのアイディアなど、家づくりのヒント盛沢山です!
写真だけでは分からない素材の質感や雰囲気、リノベ―ションの魅力をリアルに体験できるチャンスをお見逃しなく!
- EVENT DATA
-
-
開催日
2025年10月25日
-
開催時間
10:00〜17:00
-
開催場所
昭和区会場(現地案内)
-
参加費
無料
-
- 本イベントのポイント
-
-
昭和区会場のご紹介
DATA
家族構成:ご夫婦
築年数:40年
リノベーション費用:約1,460万円(2025年施工)
打合せ期間:約3ヶ月
工事期間:約3ヵ月

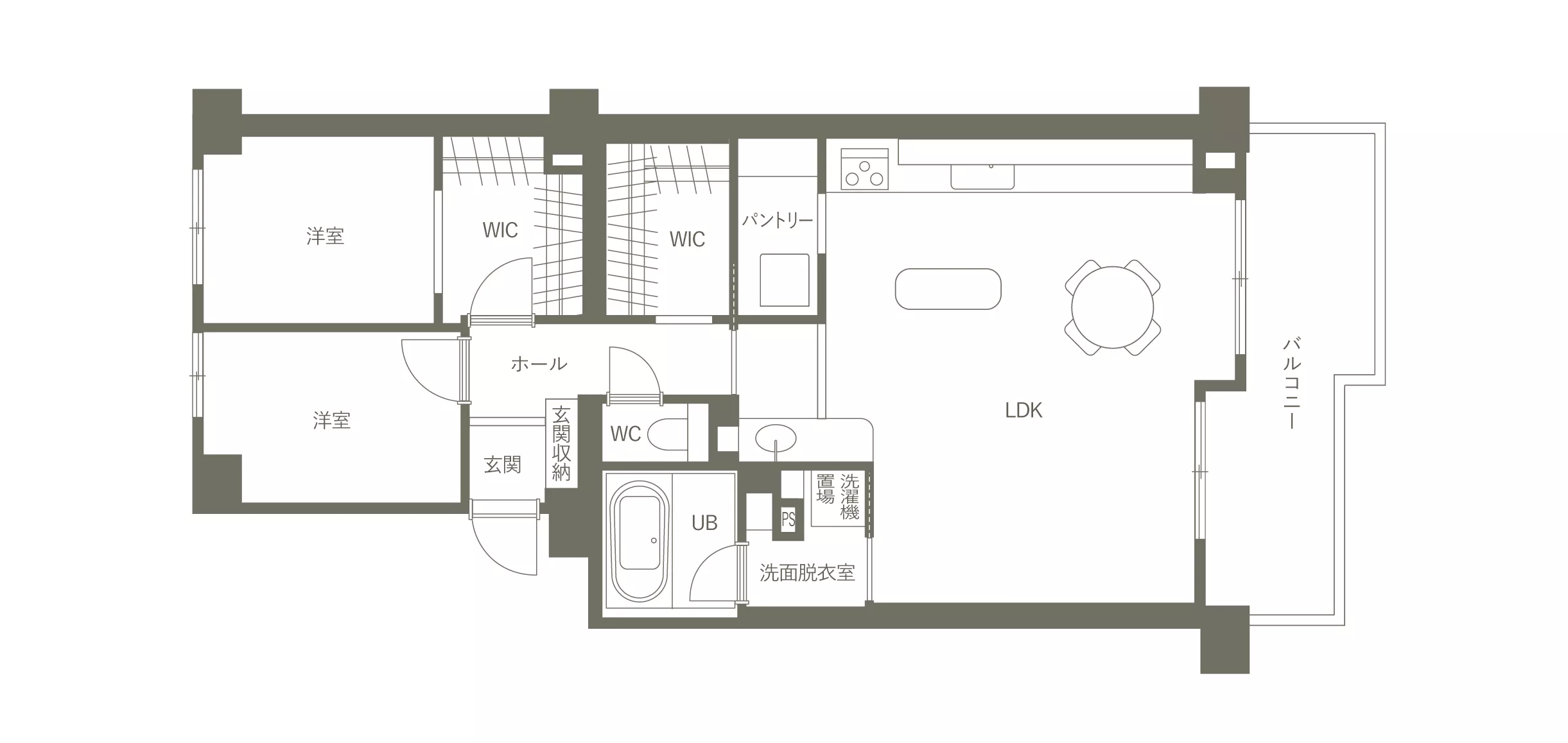
【before】3LDK

【after】2LDK
施主様の理想の暮らし
見学会の見どころポイント
■オレンジと木目で魅せる、温かみあるミッドセンチュリーモダンな空間

赤みのある木目やアクセントカラーのオレンジを取り入れ、洗練された印象と温かみを両立。家具や照明との調和により、可愛らしさと落ち着きを兼ね備えた住まいに仕上げました。
■趣味と暮らしをつなぐ、リビングに溶け込むDJブース

キッチンの延長線上に固定型のDJブースを設置。移動式カウンターを組み合わせることで作業スペースとしても活用でき、家族と過ごすリビングの中で趣味を楽しめます。
■梁や洗面にも取り入れた、アールがつくる柔らかな統一感


梁の加工やパントリーの開口、洗面台の天板など、随所にアールをデザイン。直線的になりがちな空間に柔らかさを与え、統一感のある居心地の良い住まいを演出しています。
-
リノベを体感できる貴重な見学会!
「興味はあるけどリノベって何から始めればいいんだろう」 「家づくりの参考にしたい」という方は必見です! 担当者から間取りや設計の工夫などをご説明しながらご案内させていただきます。
見学会参加のメリット
✓リノベーションの実例を見学できる!
✓間取りやデザインの参考ポイント盛沢山!
✓KULABOのデザインと施工品質の高さを体感できる!
✓わからないことやリノベについて気軽に相談できる!
✓オーナー様の生の声を聞ける!
実際にイベントに参加したお客様の声
-
・事前予約制です。ご予約が埋まり次第終了です。
・参加費は無料です。
・見学所要時間は約30分から1時間程です。
・ご予約確定後に集合場所をお伝えしております。
・参加をご希望の方は、WEBまたはお電話にてご予約くださいませ。
・オンラインでのご見学も受付けております。
オンライン見学をご希望の方はその旨お客様窓口までご連絡くださいませ。
お客様窓口:0120-85-7755
- 来場特典
-
-
来場者限定!特典プレゼントあり!
当イベントに来場した後、当社でリノベーションをご成約いただいた方には成約金額に応じて家具をプレゼント!
■500万~999万のご成約
→家具10万円分プレゼント!
■1,000万円以上のご成約
→家具20万円分プレゼント!***キャンペーン規約***
その他キャンペーンとは併用不可/来場者アンケートにご協力いただきます/既に契約済のお客様は対象外/当イベントに来場し、2026年1月31日迄に工事請負契約を成約いただいたお客様に適応
-
- Event Data
-
-
開催日
2025年10月25日
-
開催時間
10:00〜17:00
-
開催場所
昭和区会場(現地案内)
-
参加費
無料
-










